燃氣球閥產品概述
燃氣球閥是一種用帶有圓形通道的球體作啟閉件,球體隨閥桿轉動實現啟閉動作的閥門,主要由閥體、閥蓋、密封圈、閥座、閥桿、球體以及傳動裝置等組成,其閥體內固定有閥座,閥座間設有球體,該球體的中心頂部插入有閥桿,閥體與閥蓋法蘭連接,可以通過閥桿帶動球體做90°的轉動,從而使閥門開啟或關閉。該閥采用防火防靜電設計,當閥門的內密封體旋轉摩擦產生靜電時,其利用一個導電裝置和大地連通,從而避免靜電導致火災;當火災發生時,軟密封材料被燒壞后,其仍能保持密封,避免火災擴大。本產品主要供開啟或關閉管道、設備中液化燃氣、燃氣等氣體介質之用,也可以用于其它介質工況。
燃氣球閥根據球體是否帶有固定軸分為浮動球和固定球兩種,浮動球式燃氣球閥結構中的球體可以根據燃氣氣流而發生輕微的位移,并且被緊緊推擠到密封圈上,通過這項措施可以在燃氣管道中形成效果較好的單側密封結構,而固定球式燃氣球閥的球體則通過上轉軸與下轉軸固定在球閥閥體下部的軸承上,因此無法在受到燃氣流動壓力時橫向發生位移,只能夠以軸體為中軸線發生轉動。其在進行工作時,球體受到的燃氣流動壓力只能夠傳遞給軸承以及閥桿,而不會影響到閥座,從而極為有效的保證了閥座不會在長時間使用后發生變形。
燃氣球閥部件材料
| 序號 | 部件名稱 | 材料名稱 | |||||
| 1 | 閥 體 | A105 | A350 LF2 | A182 F304 | A182 F304L | A182 F316 | A182 F316L |
| 2 | 連 接 體 | A105 | A350 LF2 | A182 F304 | A182 F304L | A182 F316 | A182 F316L |
| 3 | 球 體 | A105+ENP | A350 LF2 | A182 F304 | A182 F304L | A182 F316 | A182 F316L |
| 4 | 閥 座 | R-PTFE、PTFE、NYLON、PPL、PEEK、DEVLON、A105+ENP、LF2+HF、SS+HF | |||||
| 5 | 閥 桿 | A182 F6a | A350 LF2 | A182 F304 | A182 F304L | A182 F316 | A182 F316L |
| 6 | 固 定 軸 | A182 F6a | A350 LF2 | A182 F304 | A182 F304L | A182 F316 | A182 F316L |
| 7 | 填 料 | GRAPHITE、R-PTFE、PTFE、TEFLON、PCTFE | |||||
| 8 | 連 接 板 | A105 | A350 LF2 | A182 F304 | A182 F304L | A182 F316 | A182 F316L |
| 9 | 螺 柱 | A193 B7 | A193 B7 | A193 B8 | A193 B8 | A193 B8M | A193 B8M |
| 10 | 螺 母 | A194 2H | A194 2H | A194 8 | A194 8 | A194 8M | A194 8M |
燃氣球閥技術規范
| 公稱壓力Class | 150 | 300 | 600 | 900 | 1500 | 2500 |
| 殼體試驗壓力(MPa) | 3.0 | 7.5 | 16.5 | 22.5 | 39.2 | 65.2 |
| 液體高壓密封試驗壓力(MPa) | 2.2 | 5.5 | 12.1 | 16.5 | 28.6 | 47.75 |
| 氣體低壓密封試驗壓力(MPa) | 0.6 | 0.6 | 0.6 | 0.6 | 0.6 | 0.6 |
| 設計制造 | GB/T 12237、GB/T 21385、API 6D、API 608、ASME B16.34 | |||||
| 結構長度 | GB/T 12221、API 6D、ASME B16.10 | |||||
| 連接法蘭 | JB/T 79、GB/T 9113、HG/T 20592、HG/T 20615、SH/T 3406、ASME B16.5等 | |||||
| 檢驗試驗 | JB/T 9092、GB/T 26480、API 6D、API 598 | |||||
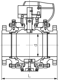
燃氣球閥主要尺寸
| 公稱壓力 Class | 公稱尺寸 NPS | 結構尺寸/mm | 公稱壓力 Class | 公稱尺寸 NPS | 結構尺寸/mm | ||
| d | L | d | L | ||||
| 150 | 2 | 49 | 178 | 300 | 2 | 49 | 216 |
| 2 ? | 62 | 191 | 2 ? | 62 | 241 | ||
| 3 | 74 | 203 | 3 | 74 | 283 | ||
| 4 | 100 | 229 | 4 | 100 | 305 | ||
| 6 | 150 | 394 | 6 | 150 | 403 | ||
| 8 | 201 | 457 | 8 | 201 | 502 | ||
| 10 | 252 | 533 | 10 | 252 | 568 | ||
| 12 | 303 | 610 | 12 | 303 | 648 | ||
| 14 | 334 | 686 | 14 | 334 | 762 | ||
| 16 | 385 | 762 | 16 | 385 | 838 | ||
| 18 | 436 | 864 | 18 | 436 | 914 | ||
| 20 | 487 | 914 | 20 | 487 | 991 | ||
| 24 | 589 | 1067 | 24 | 589 | 1143 | ||
| 表中未列出的其他規格參數,請咨詢汗越閥門技術部! | |||||||
燃氣球閥結構圖

如果你需訂購我廠鍛鋼球閥產品,咨詢時煩請注明規格型號,如無法提供,請說明公稱通徑、公稱壓力、閥體和內件材質、介質溫度,本產品根據球體的不同分為浮動式和固定式兩種,驅動方式可選用手動、蝸輪傳動、氣動、電動及液動等。
網站首頁