FGP4X復合式高速排氣閥產品概述
FGP4X復合式高速排氣閥是一種同時具備大、小進排氣孔,在管道空管注水時實現快速排氣,排盡氣后具有自動密封功能,當管內產生負壓時又能快速進氣,且在工作壓力下可排出管中集結的微量空氣的進排氣裝置。該閥利用伯努利理論制造,可在氣流下保持全開,當實心水柱上升時,浮球能夠馬上被浮起并嚴密封閉排氣口,其采用特定的浮球直徑,使得它產生的氣流動力能維持浮球在氣流經過時開啟,實心水柱上升時產生的浮力又能使其浮起,配之入口處以一個合適角度的圓錐體,可做到不管氣壓多大、氣流速度多高,排氣口也不會被吹堵。
FGP4X復合式高速排氣閥在管線空管充滿水時,管道中的大量空氣自動排出,以避免在管中形成阻礙水流的氣囊,而且在壓力管的運行過程中,它可以自動消除水中沉淀的空氣,避免水的阻塞;當管內處于負壓下時,它可以自動快速地進入空氣,平衡管線壓力,從而避免因負壓過大而導致管道不穩定和損壞,在使用時,可以消除由于停泵水錘而對管道拉水的破壞作用,從而保證供水管道的安全運行;在管道放空時,能自動大量地進氣,使放水加快,縮短停水時間。本產品是一種給水管道復合式高速進排氣閥,基本結構型式有整體式和分體式兩種。
FGP4X復合式高速排氣閥部件材料
序號 | 部件名稱 | 材料名稱 | ||||
1 | 閥 體 | QT450 | WCB | CF8 | CF8M | CF3M |
2 | 浮 體 | 06Cr19Ni10 | 06Cr19Ni10 | 06Cr19Ni10 | 06Cr17Ni12Mo2 | 022Cr17Ni12Mo2 |
3 | 升 降 罩 | 06Cr19Ni10 | 06Cr19Ni10 | 06Cr19Ni10 | 06Cr17Ni12Mo2 | 022Cr17Ni12Mo2 |
4 | 密封組件 | NBR/EPDM | NBR/EPDM | NBR/EPDM | NBR/EPDM | NBR/EPDM |
5 | 閥 蓋 | QT450 | WCB | CF8 | CF8M | CF3M |
6 | 排 氣 罩 | QT450 | WCB | CF8 | CF8M | CF3M |
7 | 螺 柱 | 06Cr19Ni10 | 06Cr19Ni10 | 06Cr19Ni10 | 06Cr17Ni12Mo2 | 06Cr17Ni12Mo2 |
8 | 螺 母 | 06Cr19Ni10 | 06Cr19Ni10 | 06Cr19Ni10 | 06Cr17Ni12Mo2 | 06Cr17Ni12Mo2 |
FGP4X復合式高速排氣閥性能規范
公稱壓力PN(MPa) | 0.25 | 0.6 | 1.0 | 1.6 | 2.5 |
殼體強度試驗壓力(MPa) | 0.375 | 0.9 | 1.5 | 2.4 | 3.75 |
高壓水密封試驗壓力(MPa) | 0.275 | 0.66 | 1.1 | 1.76 | 2.75 |
低壓水密封試驗壓力(MPa) | 0.02 | 0.02 | 0.02 | 0.02 | 0.02 |
設計制造 | CJ/T 217-2005 給水管道復合式高速進排氣閥 | ||||
法蘭標準 | GB/T 17241.6-2008、JB/T 79-2015、GB/T 9113-2010等 | ||||
檢驗試驗 | CJ/T 217-2005 給水管道復合式高速進排氣閥 | ||||
適用水溫 | 0℃~65℃ | ||||
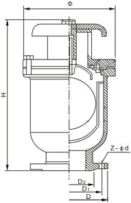
FGP4X復合式高速排氣閥外形尺寸
公稱壓力 PN(MPa) | 公稱尺寸 DN(mm) | 尺寸(mm) | |||||
Φ | H | D | D1 | D2 | Z-?d | ||
1.0 | 20 | 195 | 320 | 105 | 75 | 55 | 4-14 |
25 | 195 | 320 | 115 | 85 | 65 | 4-14 | |
32 | 195 | 320 | 135 | 100 | 78 | 4-18 | |
40 | 195 | 320 | 145 | 110 | 85 | 4-18 | |
50 | 195 | 320 | 160 | 125 | 100 | 4-18 | |
80 | 242 | 375 | 195 | 160 | 135 | 4-18 | |
100 | 260 | 395 | 215 | 180 | 155 | 8-18 | |
150 | 345 | 500 | 280 | 240 | 210 | 8-23 | |
200 | 425 | 600 | 335 | 295 | 265 | 8-23 | |
250 | 465 | 680 | 390 | 350 | 320 | 12-23 | |
300 | 505 | 780 | 440 | 400 | 368 | 12-23 | |
350 | 605 | 860 | 500 | 460 | 428 | 16-23 | |
400 | 660 | 940 | 565 | 515 | 482 | 16-25 | |
表中只列出了部分JB/T 82.1標準PN10法蘭連接外形尺寸。如需其他規格尺寸,請咨詢汗越閥門! | |||||||
FGP4X復合式高速排氣閥結構圖

如果你需訂購我廠排氣閥產品,咨詢時煩請告知公稱通徑、公稱壓力、閥體和浮體及升降罩材料、法蘭標準及法蘭密封面形式等,本產品安裝時,應檢查浮體與升降罩是否能動作靈活,再操作檢修閥開關,檢查其轉動是否靈活。
網站首頁