FFGP4X分體式進排氣閥產品概述
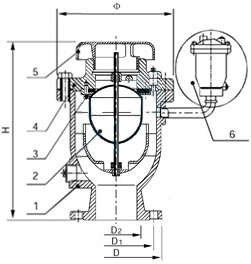
FFGP4X分體式進排氣閥是一種給水管道復合式高速進排氣閥,由閥體、浮體、大孔密封組件、閥蓋、排氣罩、小孔排氣閥以及檢修閥和防護網等組成,具有管道充水時能快速排氣,管道內產生負壓時又能快速進氣,在正常工作狀態下能排出管道中聚集的少量氣體,排氣后又能自動閉閥的進、排氣裝置。其設有大、小進排氣孔,大進排氣孔設在閥體上部,用于快速進、排氣的孔,小排氣孔則裝在小孔排氣閥的閥蓋上,在管網正常工作時能排放少量氣體的小孔。
FFGP4X分體式進排氣閥有帶防護網和不帶防護網兩種,帶防護網的其頂部進排氣通道外側安裝有金屬防塵網,網孔直徑一般為6mm~8mm,總流通面積不小于閥門公稱尺寸截面積的2倍。防塵網采用1mm~3mm厚的碳素鋼或不銹鋼鋼板按設計圖樣卷制,縫隙用電焊連接,焊縫表面光滑,其中碳鋼材質的表面噴涂有防銹漆,涂層平整、光滑、均勻。本產品主排氣口外設置防塵網能有效防止雜物飄入,使它不易堵塞和損壞,特適合安裝在地上時的工況。
FFGP4X分體式進排氣閥部件材料
序號 | 零部件名稱 | 材料名稱 | ||||
1 | 閥 體 | QT450 | WCB | CF8 | CF8M | CF3M |
2 | 浮 體 | 06Cr19Ni10 | 06Cr19Ni10 | 06Cr19Ni10 | 06Cr17Ni12Mo2 | 022Cr17Ni12Mo2 |
3 | 密 封 組 件 | NBR/EPDM | NBR/EPDM | NBR/EPDM | NBR/EPDM | NBR/EPDM |
4 | 閥 蓋 | QT450 | WCB | CF8 | CF8M | CF3M |
5 | 排 氣 罩 | QT450 | WCB | CF8 | CF8M | CF3M |
6 | 小孔排氣閥 | QT450 | WCB | CF8 | CF8M | CF3M |
7 | 螺 柱 | 06Cr19Ni10 | 06Cr19Ni10 | 06Cr19Ni10 | 06Cr17Ni12Mo2 | 06Cr17Ni12Mo2 |
8 | 螺 母 | 06Cr19Ni10 | 06Cr19Ni10 | 06Cr19Ni10 | 06Cr17Ni12Mo2 | 06Cr17Ni12Mo2 |
FFGP4X分體式進排氣閥性能規范
公稱壓力PN(MPa) | 0.25 | 0.6 | 1.0 | 1.6 | 2.5 |
殼體強度試驗壓力(MPa) | 0.375 | 0.9 | 1.5 | 2.4 | 3.75 |
高壓水密封試驗壓力(MPa) | 0.275 | 0.66 | 1.1 | 1.76 | 2.75 |
低壓水密封試驗壓力(MPa) | 0.02 | 0.02 | 0.02 | 0.02 | 0.02 |
設計制造 | CJ/T 217-2013 給水管道復合式高速進排氣閥 | ||||
法蘭標準 | GB/T 17241.6-2008、JB/T 79-2015、GB/T 9113-2010等 | ||||
檢驗試驗 | CJ/T 217-2013 給水管道復合式高速進排氣閥 | ||||
適用水溫 | 0℃~65℃ | ||||
FFGP4X分體式進排氣閥外形尺寸
公稱壓力 PN(MPa) | 公稱尺寸 DN(mm) | 尺寸(mm) | |||||
Φ | H | D | D1 | D2 | Z-?d | ||
1.0 | 20 | 195 | 320 | 105 | 75 | 55 | 4-14 |
25 | 195 | 320 | 115 | 85 | 65 | 4-14 | |
32 | 195 | 320 | 135 | 100 | 78 | 4-18 | |
40 | 195 | 320 | 145 | 110 | 85 | 4-18 | |
50 | 195 | 320 | 160 | 125 | 100 | 4-18 | |
65 | 242 | 375 | 180 | 145 | 120 | 4-18 | |
80 | 242 | 375 | 195 | 160 | 135 | 4-18 | |
100 | 260 | 395 | 215 | 180 | 155 | 8-18 | |
150 | 340 | 500 | 280 | 240 | 210 | 8-23 | |
200 | 405 | 600 | 335 | 295 | 265 | 8-23 | |
250 | 465 | 680 | 390 | 350 | 320 | 12-23 | |
300 | 505 | 780 | 440 | 400 | 368 | 12-23 | |
350 | 605 | 860 | 500 | 460 | 428 | 16-23 | |
400 | 660 | 940 | 565 | 515 | 482 | 16-25 | |
表中只列出了部分JB/T 82.1標準PN10法蘭連接外形尺寸。如需其他規格尺寸,請咨詢汗越閥門技術部! | |||||||
FFGP4X分體式進排氣閥結構圖

如果你需訂購我廠排氣閥產品,咨詢時煩請告知公稱通徑、公稱壓力、閥體和浮體件材料、法蘭標準及法蘭密封面形式等,本產品用在凈水或原水管道上,若水有雜質需配過濾裝置,可在訂貨時告知我們,配備專用過濾裝置,如果用在寒冷地區,應根據當地氣溫,按不同標準作好防凍工作。
網站首頁